- Woonoppervlakte
- Circa 131 m²
- Perceeloppervlakte
- Circa 151 m²
- Bouwjaar
- Gebouwd in 1959
- Aantal kamers
- 4 kamers (3 slaapkamers)
Sfeervolle, instapklare tussenwoning met moderne keuken en badkamer in het charmante Grave!
Ben je op zoek naar een warme, sfeervolle woning waar je zó in kunt? Dan is deze ruime tussenwoning aan een rustige weg in een fijne woonwijk precies wat je zoekt! Met een moderne keuken en badkamer, drie ruime slaapkamers én zonnepanelen is dit een ideale woning voor starters en jonge gezinnen die comfortabel willen wonen zonder te klussen.
De woning is gelegen in het prachtige vestingstadje Grave, met een historisch centrum aan de Maas. Hier geniet je van gezellige terrasjes, leuke winkels en goede restaurants. Daarnaast zijn alle dagelijkse voorzieningen binnen handbereik, evenals basisscholen, voortgezet onderwijs en sportaccommodaties. Ook natuurliefhebbers kunnen hier hun hart ophalen met volop wandel- en fietsmogelijkheden in het nabijgelegen Raamdal. Dankzij de gunstige ligging zijn de snelwegen A50, A73, A326 en N324 uitstekend bereikbaar.
Laten we samen een kijkje nemen in het huis!
Begane grond:
Via de entree kom je in de hal met meterkast, garderobe en een modern toilet. De royale L-vormige woon- en eetkamer is een heerlijke leefruimte, voorzien van inbouwspots (Philips Hue) en toegankelijk via een stijlvolle stalen glasdeur. Vanuit de woonkamer heb je toegang tot een praktische trapkast en een extra bergruimte.
In het tussenhalletje richting de achtertuin bevindt zich de ruimte voor een losse koelkast en vriezer (gaan mee), evenals de cv-opstelling. Aansluitend vind je de ruime, moderne woonkeuken, voorzien van een 4-pits gaskookplaat, koelkast, vriezer, vaatwasser en combi-oven. De voormalige badkamer op de begane grond is momenteel niet in gebruik.
Eerste verdieping:
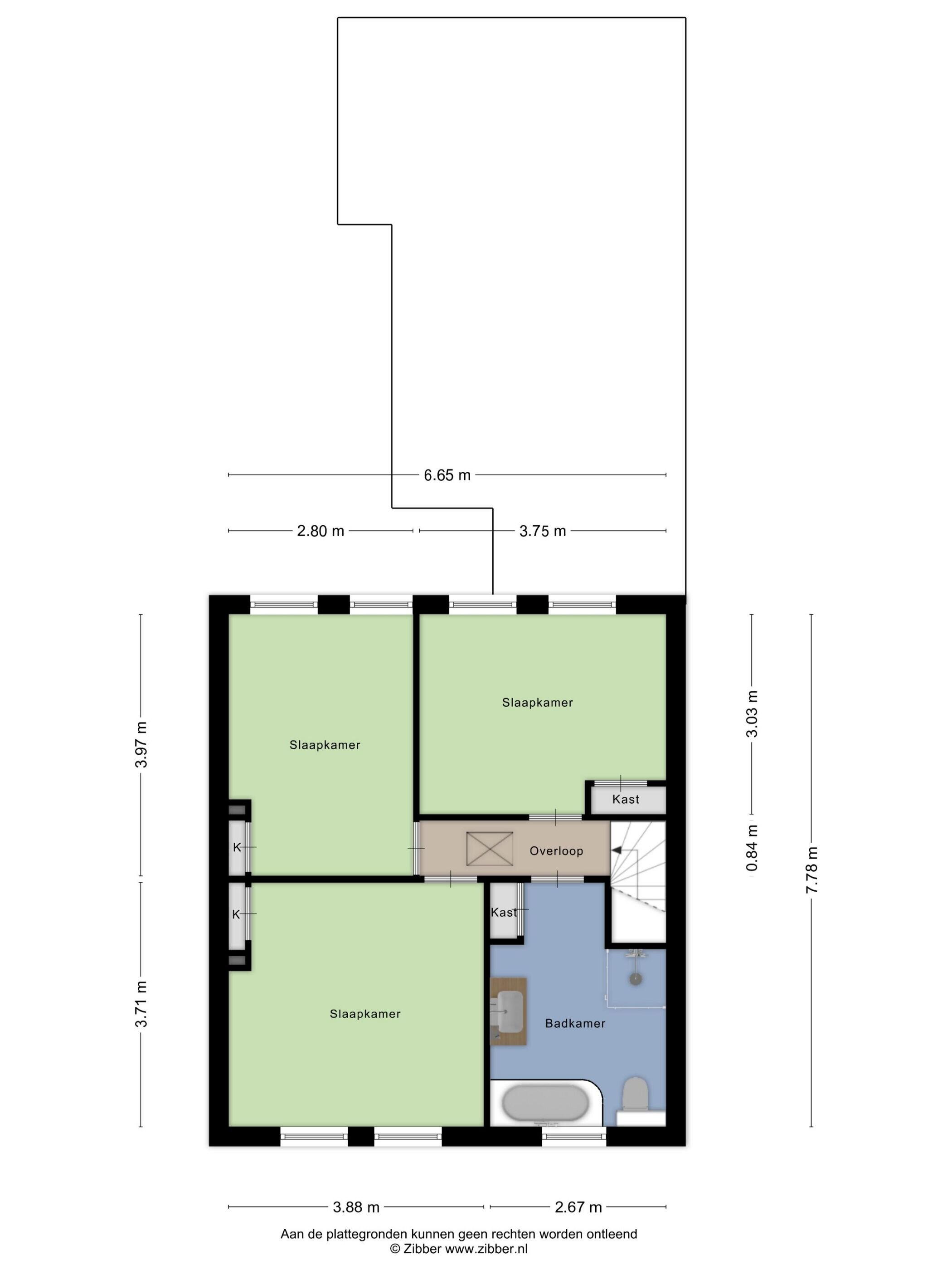
De overloop geeft toegang tot drie zeer ruime slaapkamers, allen voorzien van inbouwkasten en een nette laminaatvloer. De moderne badkamer (2022-2023) is royaal opgezet en beschikt over een ligbad, douche, toilet, wastafel en een praktische inbouwkast – een fijne plek om te ontspannen na een lange dag.
Zolder:
Via een vlizotrap bereik je de ruime bergzolder met dakraam en de omvormer voor de zonnepanelen. Ideaal voor het opbergen van al je spullen.
Tuin:
De voortuin is verzorgd aangelegd met tegels, siergrind en twee boompjes.
De achtertuin is onderhoudsvriendelijk met bestrating en beschikt over een achterom.
Bijgebouwen:
Aangebouwde stenen schuur voorzien van elektra
Overige informatie:
- Energielabel C
- Zonnepanelen: 2023, 10 panelen
- Kozijnen: Kunststof
- Beglazing: Geheel dubbelglas HR+
- Cv-installatie: Remeha 2011
- Warmwaterboiler: Bosch 2023, i.c.m. zonnepanelen en SolarEdge S 440 optimizer
- Woonkamer en keuken: Beide voorzien van laminaat vloer
- Voorzieningen: Glasvezel, buitenzonwering en rolluik schuurdeur
- Badkamer: 2022-2023
- Vloeren: Begane grond en eerste verdieping betonnen vloer, 2e verdieping houten vloer
- Kruipruimte: Niet aanwezig
- Schilderwerk buiten: n.v.t.
- Parkeergelegenheid: Openbaar
- De woning is gelegen in een gebied dat is aangewezen als beschermd dorpsgezicht
Gemeentelijke lasten:
Onroerendzaakbelasting € 339,52 per jaar
Afvalstoffenheffing vastrecht € 261,- per jaar
Rioolheffing € 262,44 per jaar
Lokale belastingen:
Waterschapslasten € 363,- per jaar
Jaarlijks verbruik:
Elektra 2778 kWh
Gas 853 m³
Water 33 m³
HW Makelaardij heeft haar uiterste best gedaan om u van de juiste informatie te voorzien. Er kunnen echter geen rechten aan worden ontleend. Lees de volledige omschrijving
Overdracht
- Vraagprijs
- € 350.000 k.k.
- Status
- Verkocht onder voorbehoud
- Aanvaarding
- In overleg
Bouw
- Object type
- Eengezinswoning, tussenwoning
- Soort bouw
- Bestaande bouw
- Bouwjaar
- 1959
- Soort dak
- Zadeldak bedekt met pannen
Oppervlakte en inhoud
- Woonoppervlakte
- 131 m²
- Perceeloppervlakte
- 151 m²
- Inhoud
- 540 m³
Indeling
- Aantal kamers
- 4 kamers (3 slaapkamers)
- Aantal badkamers
- 2 badkamers
- Badkamervoorzieningen
- 2 douches, wastafel, ligbad, toilet, en wastafelmeubel
- Aantal woonlagen
- 3 woonlagen
- Voorzieningen
- Buitenzonwering, glasvezelkabel, rolluiken, en zonnepanelen
Energie
- Energielabel
- C
- Energielabel registratie
- 18-03-2026
- Isolatie
- Dubbel glas
- Verwarming
- Cv-ketel
- Warm water
- Elektrische boiler
- Cv ketel
- Remeha (gas gestookt combiketel uit 2011, eigendom)
Buitenruimte
- Ligging
- Aan rustige weg en in woonwijk
- Tuin
- Achtertuin en voortuin
- Afmetingen voortuin
- 27 m² (6,86 meter diep en 3,99 meter breed)
- ligging tuin
- Gelegen op het zuidwesten
Bergruimte
- Schuur / berging
- Aangebouwde stenen berging
- Voorzieningen
- Elektra
Parkeergelegenheid
- Soort parkeergelegenheid
- Openbaar parkeren
Energieverbruik in Grave
Energielabel deze woning
Energielabel C
Publicatie energielabel: 18-03-2026
Stroomverbruik per jaar
(Gemiddelde tussenwoning in Grave)
Gasverbruik per jaar
(Gemiddelde tussenwoning in Grave)
* Cijfers zijn afkomstig van het CBS en bedoeld als indicatie en kunnen verschillen voor deze woning
Indicatie hypotheeklasten
Eigen inleg:
Spaargeld / overwaarde
Rente:
Laagste 10-jaars rente
Laagste 10-jaars rente
2,78% - Centraal Beheer - NHG
3,04% - Centraal Beheer - 80%
Laagste 20-jaars rente
3,29% - Centraal Beheer - NHG
3,52% - Centraal Beheer - 80%
Laagste 30-jaars rente
3,41% - Centraal Beheer - NHG
3,7% - Argenta - 80%
Hypotheek:
Bruto maandlasten: € 0 p/m
Netto maandlasten: € 0 p/m
Hoe berekenen we dit?
Het rentepercentage is gebaseerd op de laagste 10 jaars vaste rente voor één hypotheekdeel. De vermelde rente (2.78% met NHG) is gecontroleerd op 10-05-2026. Deze berekening is gebaseerd op een annuïteitenhypotheek die volledig wordt afgelost, waarbij de maandlasten gedurende de gehele looptijd gelijk blijven. De werkelijke rente en netto maandlasten kunnen variëren, afhankelijk van uw persoonlijke situatie en de hypotheekverstrekker. Raadpleeg een financieel adviseur voor een nauwkeurige berekening en advies. Aan deze berekening kunnen geen rechten worden ontleend; het dient enkel als indicatie.
Documentatie
Kadastrale kaart
Leefomgeving
Plattegronden PDF
WOZ waarderapport
BAG uittreksel
Brochure
Bezichtiging
Waardebepaling
Zoekopdracht
Alles downloaden
Zonnegrenzen bekijken
Op de kaart
Inwoners in Grave
Cijfers voor postcodegebied 5361
- Totaal aantal inwoners
- 8680 inwoners
- Mannen
- 50%
- Vrouwen
- 50%
Inwoners in Grave
Cijfers voor postcodegebied 5361
- tot 15 jaar
- 15%
- 15 tot 25 jaar
- 11%
- 25 tot 35 jaar
- 22%
- 45 tot 65 jaar
- 29%
- 65 en ouder
- 23%
Huishoudens in Grave
Cijfers voor postcodegebied 5361
- Eenpersoons zonder kinderen
- 34%
- Meerpersoons zonder kinderen
- 33%
- Huishoudens zonder kinderen
- 67%
Huishoudens in Grave
Cijfers voor postcodegebied 5361
- Huishoudens met één kind
- 8%
- Huishoudens met meerdere kinderen
- 25%
- Huishoudens met kinderen
- 33%
Woningen in Grave
Cijfers voor postcodegebied 5361
- Woningen voor 1945
- 7%
- Woningen tussen 1945 en 1965
- 18%
- Woningen tussen 1965 en 1975
- 25%
- Woningen tussen 1975 en 1985
- 21%
- Woningen tussen 1985 en 1995
- 13%
Woningen in Grave
Cijfers voor postcodegebied 5361
- Woningen tussen 1995 en 2005
- 8%
- Woningen tussen 2005 en 2015
- 7%
- Woningen na 2015
- 1%
- Huurwoningen
- 40%
- Koopwoningen
- 60%
Overige in Grave
Cijfers voor postcodegebied 5361
- Gemiddelde WOZ waarde
- € 208.000,-
- Personen onder de 65 met uitkering
- 7%
Overige in Grave
Cijfers voor postcodegebied 5361
- Adressen per km²
- 781
- Stedelijkheid (schaal 1 op 5)
- 40%
HW Makelaardij Wijchen
Indien u vragen heeft of u wilt een bezichtiging inplannen, dan kunt u gebruik maken van het formulier hiernaast. Er zal daarna op korte termijn contact met u worden opgenomen.
Contact opnemen
Over HW Makelaardij
HW Makelaardij staat garant voor een enthousiaste benadering, transparante communicatie en heldere afspraken. U kunt rekenen op onze persoonlijke aandacht en een actieve, deskundige begeleiding. Als u op zoek bent naar een makelaar die uw belangen vooropstelt, bent u bij ons aan het juiste adres. HW Makelaardij werkt snel en professioneel!
Onze sterke punten zijn:
- Dankzij onze kleinschalige portefeuille kunnen wij u volop persoonlijke aandacht en maatwerkadvies bieden.
- Wij bieden scherpe courtagetarieven en een aantrekkelijk uurtarief.
- U kunt rekenen op onze intensieve begeleiding gedurende het hele aan- en verkooptraject.
- Met onze uitgebreide (juridische) kennis houden wij u volledig geïnformeerd over alle aspecten van het aan- en verkopen van een woning.
- Wij bieden een uitgebreid scala aan diensten.
Of u nu een huis wilt kopen, verkopen of de actuele marktwaarde van uw woning wilt weten, wij nodigen u van harte uit voor een vrijblijvend gesprek bij ons op kantoor in Balgoij (Wijchen) of bij u thuis.
Nieuwste reviews
-
Saltshof 2808
Mike van HW makelaardij heeft ons top geholpen, geadviseerd en begeleid in de aankoop van onze nieuwe woning. Hij is laagdrempelig bereikbaa...
-
Watersnipstraat 86
Wij zijn ontzettend prettig geholpen en begeleid door Mike van HW Makelaardij. Hij heeft met ons door de woning gelopen, kritisch gekeken na...
-
Portugalhof 3
Hij had een persoonlijke begeleiding. Vriendelijk, correct. Je kon altijd terecht voor vragen.Alles is vlot verlopen. Uiteindelijke verkoopp...